PRYOR STREET RESIDENCE
Project Status: Completed
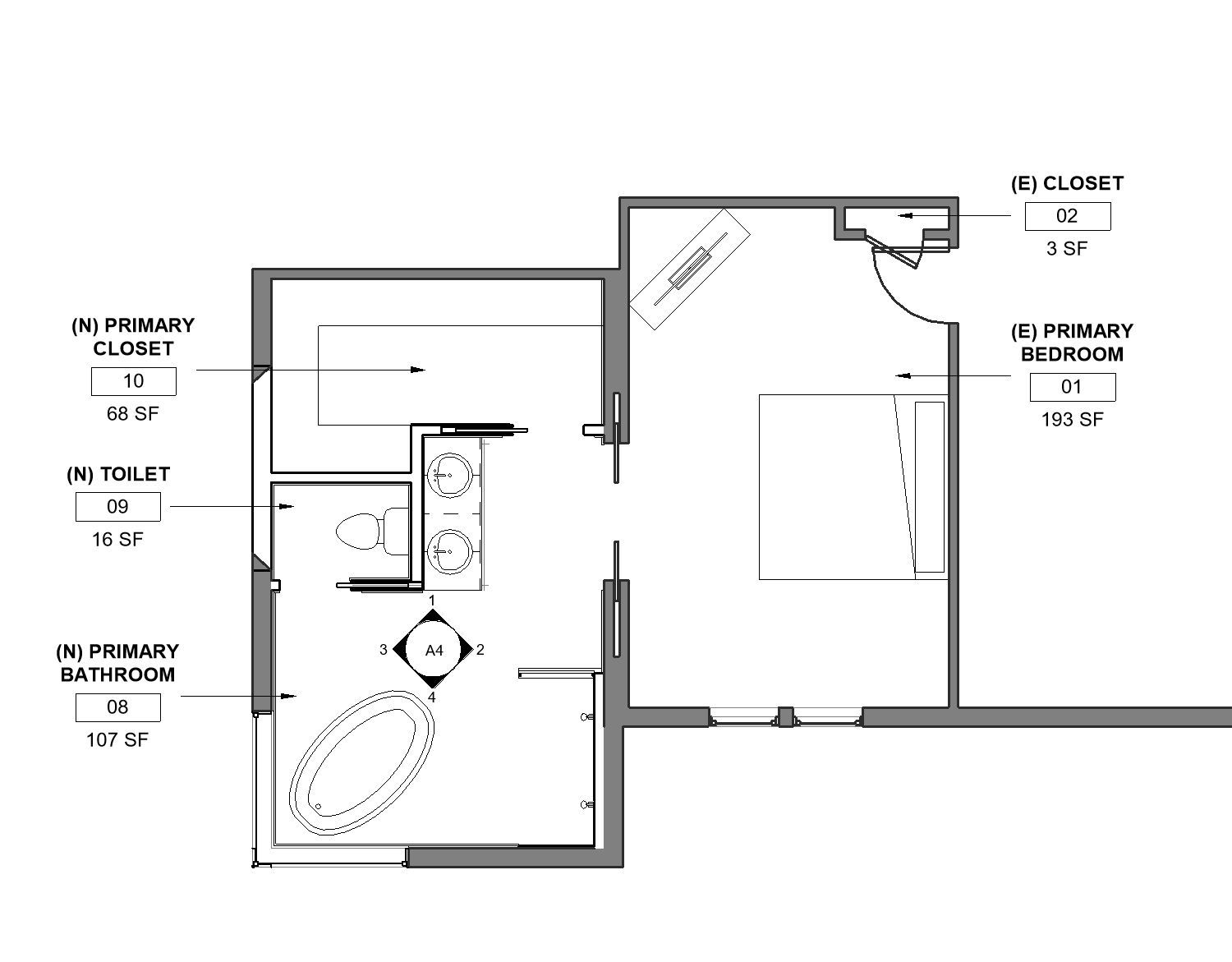
The new owners of Pryor Street residence purchased this historic home in 2021 and sought AMBL’s guidance in renovating the owner’s bathroom from its current 1980s style to something more modern and functional, while also maintaining a relationship with the home's historic detailing. We gutted the space down to the studs and addressed some structural and subfloor issues before constructing our new design that includes a walk-in closet, double-headed shower, modern tub, and double vanity.






